THANG MÁY GIA ĐÌNH TRUNG CẤP
NHẬP KHẨU NGUYÊN CHIẾC CHÂU Á – PHÙ HỢP CHO MỌI NHÀ
THANG MÁY CÔNG NGHỆ THỦY LỰC

Thang máy thủy lực là gì?
Thang máy thủy lực hoạt động dựa trên lực đẩy của Piston đẩy kết hợp cáp kéo
Với sự kết hợp giữa Piston thủy lực và cáp kéo giúp thang máy rút ngắn được chiều sâu hố Pit , OH đồng thời nâng cao hành trình của thang máy
Toàn bộ tủ điều khiển trung tâm được để bên ngoài giếng thang giúp giảm thiểu tối đa kích thước giếng thang đồng thời tăng tính thẩm mỹ cho dòng thang máy thủy lực
Tại sao nên chọn thang máy gia đình công nghệ thủy lực Getis
- Gần như không có tiếng ồn trong quá trình vận hành
- Không cần xây dựng phòng máy
- Tiết kiệm diện tích lắp đặt, tối ưu không gian sử dụng
- Thiết kế linh hoạt, sang trọng, hiện đại
- Tích hợp các công nghệ hiện đại nhất
- Mức độ an toàn cao
Diện tích nhỏ nhất để lắp đặt thang máy thủy lực
Thang máy mini cửa mở tay diện tích thông thủy chỉ từ 0,68 m2

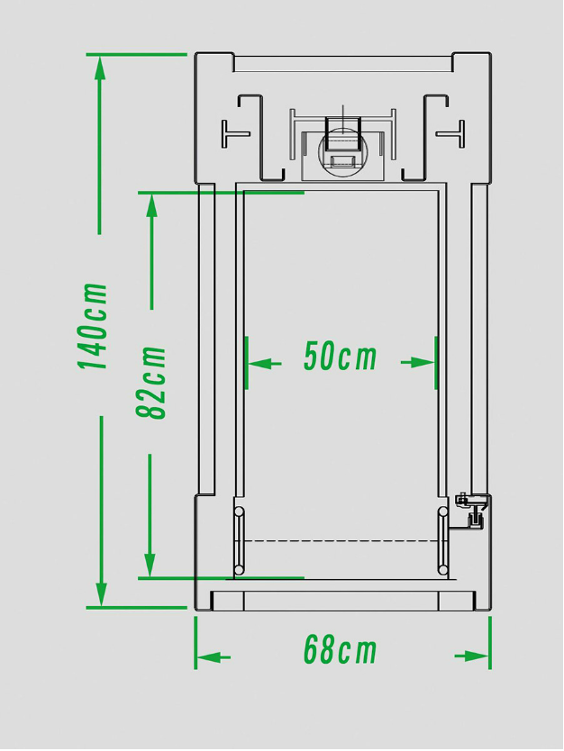
Thông số chung của thang máy gia đình thủy lực
Thông số chung

Giếng thang

Kích thước thang máy thủy lực theo tải trọng của thang
Kích thước thang máy tải trọng 275kg
- Kích thước cabin: 600 x 800 mm
- Kích thước giếng thang: 975 mm x 900 mm (giếng bê tông) và 1050 x 1000 mm (giếng thép)
- Kích thước cửa thang: từ 600 mm
Kích thước thang máy tải trọng 375kg
- Kích thước cabin: từ 800 x 800 mm đến 800 x 1200mm
- Kích thước giếng thang: từ 1200 mm x 1200 mm (giếng bê tông) và 1300 x 1400 mm (giếng thép)
- Kích thước cửa thang: từ 750 mm
Kích thước thang máy tải trọng 450kg
- Kích thước cabin: từ 950 x 1300mm
- Kích thước giếng thang: từ 1300 mm x 1400 mm (giếng bê tông) và 1400 x 1500 mm (giếng thép)
- Kích thước cửa thang: từ 800 mm
THANG MÁY CÔNG NGHỆ CÁP KÉO

Thang máy cáp kéo là gì?
Thang máy gia đình cáp kéo GETIS với hệ thống truyền động điện cải tiến, mức tiêu thụ năng lượng giảm là sự lựa chọn hoàn hảo cho mọi gia đình
Công nghệ cáp kéo tiên tiến vượt trội, sản phẩm đảm bảo độ an toàn tuyệt đối, hiệu quả cao, tối ưu trong khâu vận hành.
Thang máy gia đình cáp kéo GETIS là sự lựa chọn lý tưởng cho ngôi nhà của bạn, thích hợp với mọi không gian có sẵn, tạo nên thế giới phong phú của bạn bằng vẻ đẹp sang trọng, tinh tế và đẳng cấp.
Tại sao công nghệ thang máy gia đình cáp kéo phù hợp với bạn ?
- Giá thang máy hợp lý với điều kiện tài chính với phần lớn người dùng
- Không bị giới hạn về quy mô công trình từ lớn tới nhỏ
- Có nhiều mức tải trọng khác nhau để chọn mua
- Sự đa dạng ở mẫu mã cho tới chi phí bảo trì, sửa chữa hợp lý
- Thiết kế linh hoạt, sang trọng, hiện đại
- Tích hợp các công nghệ hiện đại nhất
- Mức độ an toàn cao
Thông số chung của thang máy gia đình cáp kéo
Thông số chung

Giếng thang

THANG MÁY CÔNG NGHỆ TRỤC VÍT

Cấu tạo của thang máy trục vít như thế nào?
So với các loại thang máy thông thường, thang máy trục vít sẽ có cấu tạo đơn giản hơn, với ba bộ phận chính: Động cơ điện, trục vít và dây cu loa, đây là ba bộ phận chính, ngoài ra còn có các loại bu lông truyền động và an toàn, dầu bôi trơn kết hợp để tạo thành chuyển động hào hảo.
Sàn thang máy sẽ di chuyển lên và xuống theo chiều hoạt động của động cơ, điều này có được nhớ vào hệ thống bánh răng. Bên cạnh đó, thang máy còn có sự phối hợp hoạt động của: Hệ truyền động Ecosilent, vách kính, bảng điều khiển, những trang bị này giúp thang máy hoạt động êm ái hơn. Thêm trang bị hệ thống phanh an toàn, đảm bảo tính mạnh cho người dùng khi sự cố xảy ra.
THANG MÁY TRÒN
Thang máy thiết kế tròn
Thang máy tròn siêu sang là dòng sản phẩm thang máy tròn, được sản xuất và cung cấp đồng bộ từ giếng thang, kính tròn xung quanh giếng thang kèm theo thang máy
Đây là dòng sản phẩm với tải trọng từ 630kg đến 1000kg, thích hợp cho những không gian rộng lớn, các tòa lâu đài, biệt thự sang trọng.
Tại sao thang máy tròn là sự lựa chọn hoàn hảo cho không gian đẳng cấp
- Lấy sáng cho ngôi nhà, tạo cảm giác rộng rãi và thoáng đãng
- Tích hợp được 1 trong 3 công nghệ hiện đại nêu trên và nhiều công nghệ khác
- Tiết kiệm diện tích lắp đặt, tối ưu không gian sử dụng
- Thiết kế sang trọng, hiện đại
- Mức độ an toàn cao
Thông số chung của thang máy gia đình thiết kế tròn

Giá thang máy gia đình nhập khẩu châu Á
Mỗi mẫu thang máy gia đình châu Á đều có thiết kế, yêu cầu cùng thông số kỹ thuật khác nhau nên mức giá dành cho từng mẫu cũng vì thế mà thay đổi rất nhiều.
Nhưng nhìn chung, chi phí cho một chiếc thang máy gia đình này khá “dễ chịu”, từ 500 – 800 triệu đồng. Đây được đánh giá là lựa chọn phù hợp nhất dành cho gia chủ khi quyết định đầu tư.
Trên đây là những thông tin cơ bản nhất về dòng thang máy gia đình nhập khẩu từ châu Á – thang máy gia đình tầm trung
Nếu bạn đang muốn đầu tư giải pháp di chuyển tiên tiến này cho gia đình thì hãy tìm hiểu thật kỹ để có thể đưa ra được lựa chọn phù hợp và tối ưu nhất nhé!
Để tiết kiệm thời gian và có thông tin chính xác nhất, bạn có thể nhận sự tư vấn tận tình và miễn phí từ những chuyên gia của Fujidelta chúng tôi.





