Trong xã hội phát triển, nhu cầu ngày càng tăng cao thì việc lựa chọn các dòng thang máy gia đình cao cấp, chất lượng cao cũng được nhiều gia đình cân nhắc lắp đặt. Trong đó, thang máy nhập khẩu nguyên chiếc là sự lựa chọn hàng đầu các gia đình gần đây.
Vậy, lý do nào khiến các dòng thang máy nhập khẩu nguyên chiếc được ưa chuộng đến vậy. Hãy cùng Thang máy Fujidelta tìm hiểu nguyên nhân tại sao nhé!
THANG MÁY NHẬP KHẨU NGUYÊN CHIẾC LÀ GÌ?

Thang máy nhập khẩu là loại thang được sản xuất theo quy trình hiện đại và tiên tiến, tuân thủ các yêu cầu nghiêm ngặt về chất lượng từ những nhà sản xuất tại các nước có nền công nghiệp hàng đầu thế giới. Phổ biến nhất hiện nay, chúng được nhập khẩu nguyên chiếc về Việt Nam từ các nước như Mỹ, Italy, Hàn, Nhật,…
So với thang máy liên doanh, thang nhập khẩu có giá cao hơn gấp 3 – 4 lần. Tuy nhiên, thay vào đó thì dòng thang máy này lại rất đa dạng về mẫu mã, hình dáng và kích thước. Đa phần các mẫu thang máy nhập khẩu đều có thiết kế hiện đại, sang trọng và tinh tế và thiết kế có thể tùy chỉnh theo sở thích của gia chủ, mang lại tính cá nhân hóa và sự đẳng cấp cho không gian sống cá nhân
Không chỉ có vẻ ngoài nổi bật, dòng thang máy này còn được sản xuất với công nghệ phát triển nhất với dây chuyền đồng bộ, khép kín. Do đó, sản phẩm có chất lượng đảm bảo và độ bền cao hơn so với thang liên doanh
Thang máy nhập khẩu cao cấp Getis
Thang máy nhập khẩu châu Âu với thiết kế tinh tế, sang trọng mang lại đẳng cấp cho căn nhà.
NHỮNG ƯU ĐIỂM NỔI BẬT CỦA THANG MÁY NHẬP KHẨU NGUYÊN CHIẾC

Chất lượng đảm bảo
Đối với loại các dòng thang máy nhập khẩu, ưu điểm lớn nhất chính là chất lượng và độ bền. Đa phần các thương hiệu lớn và uy tín như Mitsubishi – Nhật, Schindler – Thụy Sỹ, Otis – Mỹ,… đều là những doanh nghiệp đi đầu trong việc xây dựng nhà máy hiện đại, tân tiến nhất với quy trình khép kín để đảm bảo mang đến những sản phẩm không chỉ hoàn hảo về thiết kế mà còn đảm bảo an toàn tuyệt đối khi sử dụng.
Toàn bộ thang máy trước khi được nhập khẩu sang Việt Nam đều đáp ứng được những yêu cầu khắt khe của EU (tiêu chuẩn thang máy nhập khẩu từ nước ngoài) về an toàn và kiểm định chất lượng. Chính vì thế, hoàn toàn có thể an tâm về độ bền của dòng thang máy này.
Thiết kế, mẫu mã đa dạng
Không chỉ nổi bật với độ bền cao, các mẫu thang máy nhập khẩu cũng ngày càng được cải tiến đa dạng và độc đáo hơn với về mẫu mã và thiết kế. Được sản xuất dưới dây chuyền hiện đại, tiến tiến, dòng thang này đa phần có thiết kế gọn nhẹ và đẹp mắt. Cùng với đó, các chi tiết cũng ngày càng tinh tế đem đến một vẻ hiện đại và sang trọng cho căn nhà.
Tùy vào nội thất căn nhà mà chủ đầu tư có thể cân nhắc lựa chọn những mẫu thang máy phù hợp với tổng thể không gian. Nếu kiến trúc ngôi nhà đang đi theo hướng cổ điển thì nên chọn những mẫu thang máy có được ốp gỗ để mang lại vẻ ấm cúng, gần gũi. Với những căn nhà hiện đại, tinh tế thì thang máy kính chính là lựa chọn tối ưu nhất để khiến không gian thêm phần sang trọng.
Độ an toàn cao
Một trong những lý do hàng đầu để khách hàng lựa chọn các dòng thang máy nhập khẩu chính là độ an toàn. Mỗi hãng sản xuất thang máy đều có những tiêu chuẩn an toàn riêng, chính vì thế, mỗi chiếc thang máy khi được xuất khẩu ra nước ngoài đều được kiểm tra nghiêm ngặt để đảm bảo không xảy ra bất kỳ lỗi nào khi sử dụng. Sau khi đã được nhập về, nhà cung cấp phải kiểm tra một lần nữa để đảm bảo tuân thủ các yếu tố bắt buộc về độ an toàn thì mới có thể lắp đặt được
Ngoài ra, việc sử dụng thang máy gia đình nhập khẩu cũng giúp tiết kiệm được khoản phải chi hàng tháng bởi đa phần dòng thang này đều được thiết kế để tiết kiệm được mức điện năng tiêu thụ tối đa. Mặc dù tối ưu mức điện năng nhưng thang vẫn có năng suất hoạt động tốt, vận hành nhanh và êm ái.
Từ những ưu điểm của dòng thang máy nhập khẩu nguyên chiếc, việc lựa chọn lắp đặt dòng thang máy này là quyết định đúng đắn để đảm bảo được về chất lượng, độ bền cũng như tính thẩm mỹ cho căn nhà. Một số dòng thang máy nhập khẩu của những thương hiệu uy tín và có chất lượng cao chủ đầu tư có thể tham khảo qua Getis – Italy, Mitsubishi – Nhật, Schindler – Thụy Sỹ, Otis – Mỹ,…
CẦN BIẾT GÌ KHI LẮP ĐẶT THANG MÁY NHẬP KHẨU?
Thang máy nhập khẩu không còn quá xa lạ đối với nhiều khách hàng Việt. Tuy nhiên, khách hàng liệu đã thực sự hiểu rõ những yêu cầu cơ bản khi lắp đặt thang máy gia đình nhập khẩu?
Dưới đây sẽ là những thông tin cho khách hàng một số điều cần biết để quá trình lắp đặt thang máy đạt hiệu quả tốt nhất
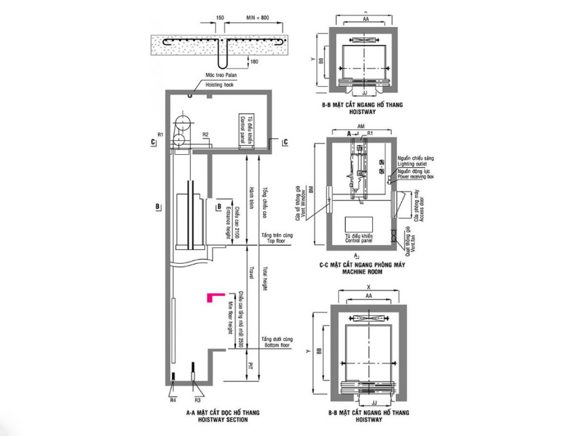
Tính toán kích thước và không gian lắp đặt thang máy
Trước khi lựa chọn mẫu mã và đưa ra những yêu cầu về thiết kế đối với thang máy nhập khẩu, khách hàng phải xác định chính xác diện tích sử dụng cho việc lắp đặt thang máy. Không gian dùng cho thang máy quyết định lớn tới bản thiết kế của thang cùng quá trình thi công lắp đặt
Kích thước và tải trọng của thang máy sẽ phụ thuộc vào số thành viên trong gia đình cũng như diện tích dùng để xây dựng thang. Thông thường, tải trọng của thang máy gia đình nhập khẩu sẽ rơi vào khoảng từ 250kg đến 500kg.
Tốc độ di chuyển của thang máy một phần bị ảnh hưởng bởi tải trọng, một phần tác động bởi số tầng mà thang hoạt động. Trong những ngôi nhà có chiều cao từ 4 tầng trở xuống thì tốc độ của thang sẽ rơi vào khoảng 30m/phút là phù hợp, nếu cao hơn thì tốc độ của thang sẽ khoảng 60m/phút.
Đây là dòng thang máy gia đình nhập khẩu nguyên chiếc nên những sai sót xảy ra trong quá trình thi công lắp đặt sẽ gây ảnh hưởng lớn tới chủ đầu tư và nhà cung cấp. Do đó, trước khi lựa chọn thang, khách hàng cần đảm bảo tính toán chính xác các kích thước trong ngôi nhà của mình, giúp cho quá trình thi công đạt hiệu quả cao.

Kiểm tra logo thương hiệu của sản phẩm để nhận biết và phân biệt hàng giả
Trải qua quá trình lên ý tưởng và thiết kế, các thương hiệu sẽ cho ra đời một biểu tượng logo, đánh dấu sự hình thành của doanh nghiệp mình. Mỗi một thương hiệu luôn có biểu tượng logo riêng, được coi là bộ nhận diện và là điểm chạm đầu tiên tới khách hàng. Biểu tượng logo sẽ đồng hành cùng với thương hiệu trong suốt quá trình phát triển và lan tỏa sản phẩm trên thị trường.
Những thương hiệu thang máy nhập khẩu uy tín trên thị trường như Mitsubishi, Fuji hay Hitachi, Otis, Getis, Suntec cũng đều được trang bị đầy đủ logo nhằm giúp khách hàng dễ dàng phân biệt với dòng sản phẩm của thương hiệu khác.
Tuy nhiên, hiện nay thị trường có nhiều sản phẩm mang biểu tượng logo rất giống với những thương hiệu nổi tiếng. Nếu khách hàng không quan sát kỹ càng và tỉ mỉ thì rất dễ mua phải các sản phẩm kém chất lượng, trôi nổi trên thị trường.
Ngoài ra, khách hàng cũng nên nhận diện kỹ logo của thương hiệu thang máy nhập khẩu đã lựa chọn. Từ đó có thể dễ dàng hơn trong việc so sánh với những logo nhái, giả khác.
Kiểm tra giấy tờ của thang máy nhập khẩu
Một sản phẩm thang máy nhập khẩu chính hãng sẽ đi kèm với nhiều loại giấy tờ khác nhau nhằm đảm bảo nguồn gốc xuất xứ và chất lượng của sản phẩm:
Giấy chứng nhận về xuất xứ của hàng hóa – Certificate of Origin
Loại giấy tờ này giúp chứng minh được nguồn gốc của thang, giúp người mua hàng biết được thang sản xuất ở đâu, trong thời gian nào, mang tên thương hiệu gì và có hợp pháp hay không
C/O được cấp bởi cơ quan Nhà Nước có thẩm quyền, mỗi quốc gia sẽ có mẫu giấy chứng nhận khác nhau. Vì thế để đảm bảo đánh giá chất lượng một cách chuẩn xác, khách hàng nên tìm hiểu thêm về mẫu giấy của một số quốc gia như Nhật Bản, Hàn Quốc và các nước châu Á lân cận
Giấy chứng nhận về chất lượng thang máy – Certificate of Quality
Thang máy nhập khẩu cần phải đảm bảo những chất lượng an toàn tốt nhất, hạn chế tối đa những rủi ro không đáng có. Do đó, mỗi sản phẩm thang máy nhập khẩu đều cần có giấy chứng nhận về chất lượng sản phẩm của thang.
Giấy chứng nhận C/Q giúp khách hàng yên tâm về chất lượng của thang máy nhập khẩu. Nó giúp chứng minh sản phẩm đã trải qua những quy trình kiểm duyệt khắt khe cả trong nước lẫn nước ngoài, đảm bảo những tiêu chuẩn về chất lượng trước khi cung cấp ra thị trường.
Giấy vận đơn của thang máy
Thang máy nhập khẩu sẽ được chuyển về Việt Nam bằng đường hàng không hoặc đường bộ. Giấy vận đơn sẽ cung cấp cho khách hàng về thông tin của đơn hàng: người gửi, người nhận, mã kí hiệu phương tiện vận chuyển và số chuyến, ngày và địa điểm chuyển hàng…
CHỌN ĐƠN VỊ CUNG CẤP UY TÍN
Cuối cùng, khách hàng cần lựa chọn cho mình một đơn vị cung cấp các sản phẩm thang máy nhập khẩu uy tín và chất lượng trên thị trường. Hiện nay có nhiều sản phẩm thang máy liên doanh nhưng lại được gắn mác thang máy nhập khẩu, làm cho sản phẩm độn giá lên rất nhiều so với giá gốc. Nếu không tỉnh táo, khách hàng rất dễ bỏ ra một khoản tiền lớn nhưng nhận được sản phẩm không thật sự chất lượng
Để có thêm thông tin về thang máy gia đình nhập khẩu, khách hàng có thể liên hệ trực tiếp với Fujidelta
Để lựa chọn một sản phẩm thang máy nhập khẩu phù hợp với gia đình, chỉ đầu tư cần cân nhắc cẩn thận để lựa chọn địa điểm cung cấp uy tín cùng chế độ bảo hành, hậu mãi hợp lý. Một địa chỉ cung cấp đầy đủ các thương hiệu thang máy nhập khẩu nguyên chiếc uy tín từ các nước Nhật, Mỹ, Italy,… mà khách hàng có thể tham khảo là Thang máy Fujidelta. Fujidelta là đơn vị đã có hơn 13 năm kinh nghiệm trong lĩnh vực lắp đặt thang máy gia đình và đã tư vấn cho hàng nghìn gia đình trên khắp Việt Nam. Ngoài ra, tại Fujidelta, toàn bộ sản phẩm đều có đầy đủ giấy tờ đảm bảo tiêu chuẩn về chất lượng.

Nếu vẫn còn băn khoăn về chất lượng hay chi phí của các mẫu thang máy nhập khẩu, vui lòng liên hệ trực tiếp với Getis để được tư vấn chi tiết nhất.





